Zeitraum
2017-2018
Kunde
Zahnärztliche Gemeinschaftspraxis Desiree & Emil Ladar
Leistungen
BauenFlächenplanung
Praxis mit Wohlfühlatmosphäre
Eine warme wohnliche und dennoch klare Ästhetik war das gestalterische Ziel für die neue Zahnarztpraxis. Auf einer Fläche von rund 300 Quadratmetern entstand ein räumliches Konzept, das funktionale Abläufe klar strukturiert und zugleich eine Atmosphäre von Ruhe, Vertrauen und Wohlbefinden vermittelt. Im Zentrum der Planung stand der Anspruch, bestehende Hemmschwellen abzubauen und den Praxisbesuch durch eine hochwertige, sorgfältig inszenierte Gestaltung nachhaltig positiv zu prägen.
Der Empfang bildet den zentralen Orientierungspunkt der Praxis. Von hier aus erschließen sich die Behandlungsräume, Büros sowie Sozial- und Funktionsräume logisch und übersichtlich. Die Material- und Farbwahl ist geprägt von erdigen, beruhigenden Tönen, die eine warme, nahezu wohnliche Atmosphäre erzeugen. Im Warte- und Empfangsbereich dominieren Materialien und Farbtöne wie Beige, Taupe, Roségold und geräucherte Eiche.
Die Zahnarztpraxis liegt in unmittelbarer Nähe zum Stadtbahnhof im Herzen von Freudenstadt im Schwarzwald. Der Standort ist geprägt von einer heterogenen städtebaulichen Struktur, die urbane Nutzungen mit angrenzender Wohnbebauung verbindet.
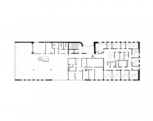
Die Grundrissorganisation folgt einer klaren und
selbsterklärenden Wegeführung. Der Empfang bildet den zentralen
Orientierungspunkt. Von hier aus erschließen sich die
Behandlungsräume, Büros sowie Sozial- und Funktionsräume. Die Behandlungsräume wurden entlang der Fassade, die Neben- und Funktionsräume kompakt im Inneren der Praxis
organisiert.








